(1/7)
Toldboden - Moderne kontor i historiske omgivelser
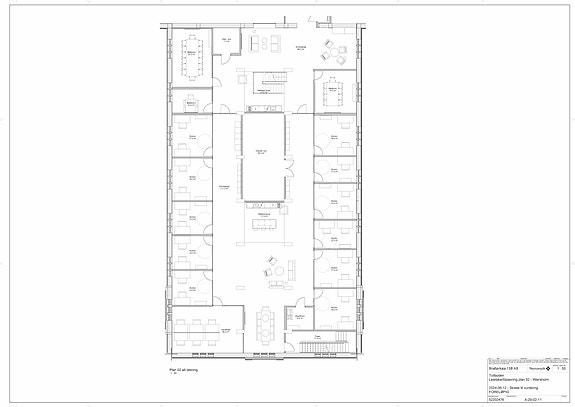
Brattørkaia 13B- Etasje:
- 2
- Type lokale:
- Kontor
- Renovert år:
- 2023
- Areal:
- 905
Fasiliteter
- Alarm
- Heis
- Kantine
Beskrivelse
Toldboden kombinerer historisk arkitektur med moderne fasiliteter.
Bygget, opprinnelig oppført for Tolletaten (1910–1919), er et vernet og fredet bygg som har blitt nøye modernisert i tett samarbeid med Byantikvaren. Miljøsertifisering: BREEAM In-Use.
Bygget, opprinnelig oppført for Tolletaten (1910–1919), er et vernet og fredet bygg som har blitt nøye modernisert i tett samarbeid med Byantikvaren. Miljøsertifisering: BREEAM In-Use.
Beliggenhet
Brattørkaia er Trondheims nye bydel ved fjorden – en perfekt kombinasjon av nærhet til sentrum, moderne infrastruktur og naturskjønne omgivelser.
Kort vei til buss, tog og hurtigbåt. 3-4minutts gange til Trondheim sentralstasjon og 5minutts gange til Solsiden.






